Martina Franca: Laboratorio Altro 103mq
800 €
-
- Taranto, Italy
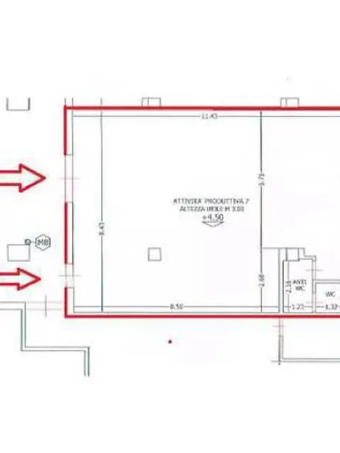
Martina Franca Via Guglielmi presso il centro commerciale "Le Vetrine" locale artigianale di mq 103. L'immobile è posto al primo piano con ascensore, composto da ampio locale con due ingressi, bagno, anti bagno e ampio balcone. Parcheggi di pertinenza. Rif. 1055 Classe Energetica: G - SC4431240 Altre caratteristiche: Superficie: 103mq Numero locali: 1
Contatta
Nome: My project casa
800 €
Invia messaggioSolo per utenti registrati Inserito il 2022/05/16
Aggiungi un commento pubblico...
Annunci correlati
-
Ufficio a Senigallia 240mq
Libero Camere in Affitto Ancona 2022/05/16CODICE: C22A93300. Cesanella - Affittiamo locale uso ufficio al piano terra rialzato di mq 240 circa...
-
Affitto Ufficio a Senigallia 190mq
Libero Camere in Affitto Ancona 2022/05/16CODICE: C22A92535. Senigallia centro storico, Affittasi Ufficio di circa mq 200, sito al primo piano...
-
Uffici temporanei in zona Stazione Centrale
35 € Camere in Affitto Milano 2022/05/16In prestigioso palazzo d'epoca, sito di fronte alla Stazione Centrale e alle spalle dell'Hotel Galli...
