San Paolo Bel Sito: Terreno Edificabile 12000mq
-
- Italy
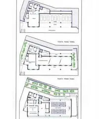
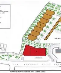
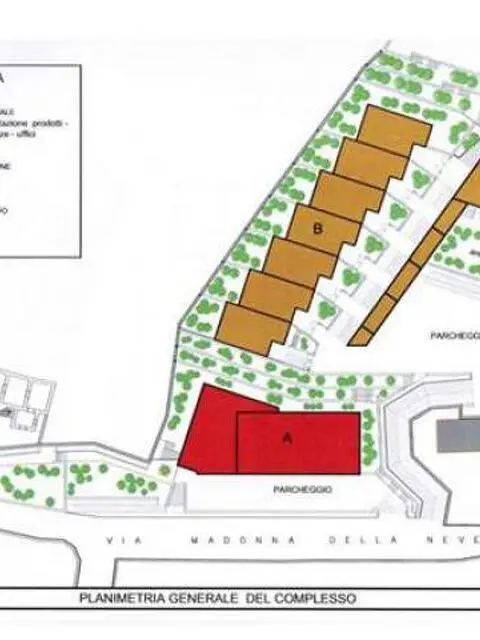
Posizione : San Paolo bel Sito, terreno in posizione strategica in quanto l'accesso è dalla strada confinante con il perimetro a valle e lo sviluppo dello stesso consente di avere un'ampia visuale fino a Napoli, più precisamente il complesso architettonico da realizzare si inserisce a valle di Castel Cicala ed immerso in una realtà agricola contraddistinta da uliveti e aranceti; tipologia : terreno edificabile con richiesta di permesso a costruire per la realizzazione di fabbricato con destinazione di edificio polifunzionale, facente parte di un complesso da destinare ad attività produttiva- ricettiva-turistico alberghiera e culturale; il terreno si sviluppa su di un'area di circa 12.000mq e più precisamente su due lotti di cui uno a valle e l'altro a monte e la volumetria da realizzare si svilupperà sul lotto a valle mentre sul lotto a monte non ci sarà volumetria ma solo la realizzazione di una viabilità pedonale con opere di drenaggio e riqualificazione della coltivazione arborea al fine di creare una sorta di passeggiata naturalistica ad integrazione del complesso a valle; il progetto prevede la realizzazione di una sala conferenza, sala promozionale prodotti agricoli, sala degustazione, percorso espositivo di foto, aula didattica, servizio informazione per passeggiata naturalistica, locale vend Altre caratteristiche: Superficie: 12000mq
Contatta
Annunci correlati
-
Monteriggioni: Terreno Agricolo
150 € Camere in Affitto 2022/05/16monteriggioni zona montemaggio terreno boschivo di 15 ettari classe energetica: non soggetto - SC442...
-
Poggibonsi: Terreno Agricolo
100 € Camere in Affitto 2022/05/16poggibonsi terreno di circa mq. 24.000 con bosco di mq.8000 e rimanente frutteto orto e prato. ottim...
-
Terreno in zona Bannia a Fiume Veneto
99 € Camere in Affitto 2022/05/16bel terreno pianeggiante in prossimit del centro e ai servizi - SC3006158
