Appartamento a Bologna
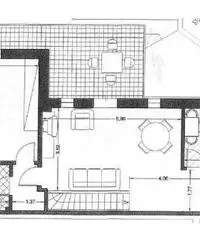
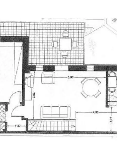
Saragozza Ad.ze Collegio di Spagna immobile liberty appartamento nuova costruzione su due livelli doppio ingresso doppio salone cucina abitabile terrazzino abitabile 2 camere 2 bagni volendo garage 60.000 euro riscaldamento a pavimento climatizzazione, produzione d'acqua calda a pannelli solari costruzione anti sismica affittato a euro 1.850 mensili Agenzia Rubini G. telefoni 051227648 - 3496171619 - SC1859813 Prezzo: € 600.000 Bologna (Emilia Romagna) Informazioni Contatto Nome: Agenzia Rubini G. Telefono: 051/227648
Contatta
Annunci correlati
-
Nola Affitto Appartamento
350 € Case - Appartamenti in Affitto Nola (Napoli) 2022/03/22proponiamo appartamento al piano terra composto da tre vani, cucina e bagno. posto auto esterno e ba...
-
Appartamento in Vendita a 99.000
99 Case - Appartamenti in Affitto 2022/02/23In zona centralissima, disponiamo di appartamento nuovo al Piano Terra con ingresso indipendente, co...
-
Bologna: Appartamento 5 Locali o piu
620 Case - Appartamenti in Affitto 2022/02/23Via Massarenti adiacenze via Venturoli interno tranquillo immobile primi 900 di soli tre appartament...


