Appartamento in Vendita di 86mq
-
- Trento
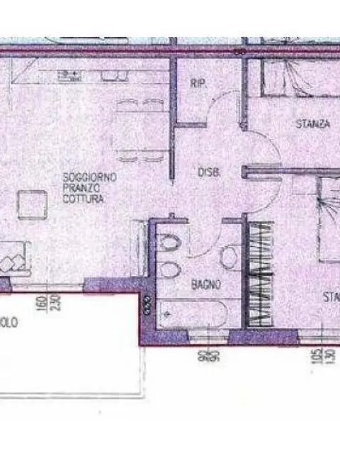
Bicamere Caldonazzo Allinterno di un nuovo complesso residenziale in posizione centrale nel borgo di Caldonazzo (circa 150 mt. dalla Stazione F.S. e circa 150 mt. dal Comune).composto da tre edifici separati, con un ampio spazio aperto adibito a verde condominiale e privato, aree giochi a circolazione pedonale, oltre ad un parcheggio esterno con ingresso separato, disponiamo di splendido appartamento bicamere posto a primo piano. Laccesso allappartamento e garantito da un luminoso e comodo giroscale con scalinata rivestita in marmo oltre che da ascensore rispondente alle norme in materia di barriere architettoniche. La disposizione dellimmobile e: entrata, soggiorno con poggiolo con ottima esposizione e buona sfruttabilita con zona cottura a vista, disbrigo zona notte, una stanza matrimoniale, una stanza singola con balcone, bagno finestrato e ripostiglio. I serramenti esterni sono in legno lamellare, mentre per quelli interni ce la possibilita di scelta , per i pavimenti caldi e previsto parquettes in legno (da scegliere) mentre per la cucina, bagni, entrata e previsto posa di ceramica di prima scelta. Limpianto di riscaldamento e centralizzato con unica caldaia presurizzata a condensazione con distribuzione del calore con la tecnica a pavimento, con regolazione temperatura interna con due cronotermostati. Allesterno delle murature si e creato un isolamento termico del tipo a
Contatta
Annunci correlati
-
Appartamento di 4 locali in Vendita
270 € Case - Appartamenti in Vendita Trento 2022/06/12Tricamere Caldonazzo Allinterno di un nuovo complesso residenziale in posizione centrale nel borgo d...
-
Capannone in Vendita di 7.500mq
1 € Case - Appartamenti in Vendita Bari 2022/06/12Triggiano, proponiamo capannone industriale avente accesso dalla S.S. 16 al km 810+250, costituito d...
-
Martina Franca Vendita Appartamento
330 € Case - Appartamenti in Vendita Martina Franca 2022/06/12Rif. 830 Martina Franca nellaffascinante barocco del centro storico vico Alighieri n°3, proponiamo i...


