Appartamento in Vendita di 88mq
-
- Francavilla al Mare
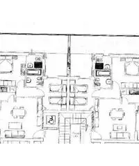
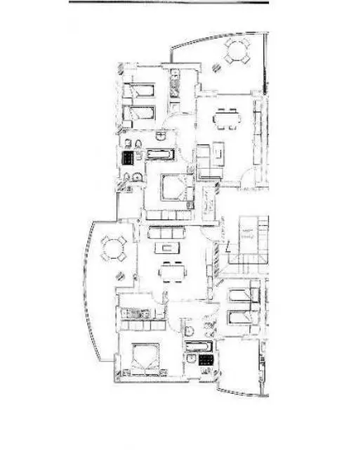
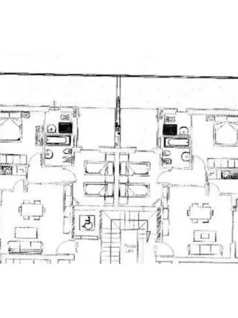
Vendesi a Francavilla al Mare, nelle vicinanze del lungomare Nord, appartamenti in complesso residenziale di nuova costruzione, a partire da 190.000 Euro. Possibilita di acquisto garage. Classe Energetica "B" Epi < 50 kWh/mqa.. Tipologia tipo: Appartamento composto da ingresso su soggiorno con angolo cottura, disimpegno, camera matrimoniale con bagno, camera doppia, bagno, ampio terrazzo e balcone. Si dispongono anche soluzioni con giardino esclusivo. Rifiniture di alta qualita: Infissi in legno-alluminio con doppi vetri termici, Tapparelle elettriche, Pannelli solari per acqua calda sanitari, Rivestimenti in gres porcellanato o parquet. Classe Energetica: B EPI: 50 kwh/m2 anno - SC1528036
Contatta
Annunci correlati
-
Attico in Vendita a 290.000
290 € Case - Appartamenti in Vendita Pescara 2022/06/12Pescara PortaNuova, zona Stadio via Jasonni, appartamento Attico su unico livello al quarto ed ultim...
-
Appartamento di 4 locali in Vendita
225 € Case - Appartamenti in Vendita Francavilla al Mare 2022/06/12Vendesi in Esclusivo Residence su Viale Alcyone Nord Lungomare, al confine tra Pescara e Francavilla...
-
Appartamento in Vendita - SUD
195 € Case - Appartamenti in Vendita Francavilla al Mare 2022/06/12Vendesi a Francavilla al Mare, zona sud e a circa 50 metri dal mare, appartamento ristrutturato nel ...


