Due camere e due bagni, arredato
-
- Oderzo, Treviso, Italy
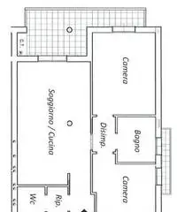
Vendo appartamento in Oderzo fraz. Rustignè, su recente palazzina di otto unità sito al primo e ultimo piano, completamente arredato e così disposto: ingresso, zona giorno con cucina open space, disimpegno, camera matrimoniale, camera singola, bagno con doccia, bagno wc/lavanderia, ripostiglio e due terrazzi; garage nell'interrato. Il locale caldaia è esterno. Riscaldamento autonomo, climatizzatore con pompa di calore, tenda da sole motorizzata, zanzariere nella zona notte. Contesto condominiale curato e tranquillo. Superfici: 76mq per la parte abitativa e 23mq per il garage. Classe Energetica "D" VENDITA DIRETTA TRA PRIVATI: NO AGENZIE ED INTERMEDIARI GRAZIE
Contatta
Annunci correlati
-
Villa Bertolini - Villa Veneta del XVI secolo
3.300.000 € Case - Appartamenti in Vendita Montebelluna (Treviso) 2022/06/22VILLA BERTOLINI Villa veneta vincolata dalla soprintendenza ai beni culturali della Regione Veneto. ...
-
Vendita Villa in viale roma
319.000 € Case - Appartamenti in Vendita Preganziol (Treviso) 2022/06/22PREGANZIOL: In zona centrale proponiamo porzione di bivilla dalle ampie metrature e ottime finiture,...
-
Vendita Villa in Via Molini
520.000 € Case - Appartamenti in Vendita Caerano di San Marco (Treviso) 2022/06/22Un portico affacciato sul giardino permette laccesso diretto al luminosissimo soggiorno vetrato con ...


