Locale commerciale o uffici in Lottizzazione Cualbu
-
- Oristano
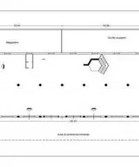
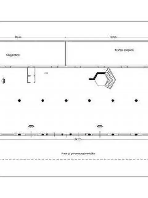
In zona lottizzazione Cualbu, con grande visibilita e ampia possibilita di parcheggio. Zona commerciale e artigianale piu importante di Oristano.480 mq di locale commerciale piu altri 480 mq ca di pertinenze per posti auto per il personale o mezzi da lavoro, in area all'aperto per la clientela, e magazzino. Il locale dispone di vetrine, bagni, diversi ingressi e si presenta in buone condizioni generali. All'interno unico ambiente personalizzabile e divisibile. Cedibili anche altri locali uso ufficio. Il prezzo medio del locale commerciale in questa zona e di euro 1400 al mq. Prezzo proposto euro 1000 al mq.Classe F
Contatta
Annunci correlati
-
CAPANNONE AL CENTRO DELLA SARDEGNA
300 € Case - Appartamenti in Vendita Oristano 2022/06/12A Simaxis Capannone industriale commerciale artigianale al centro dellaSardegna a ridosso della ss 1...
-
CASA INDIPENDENTE CON GIARDINO
57 € Case - Appartamenti in Vendita Sassari 2022/06/12In Sardegna, a SEMESTENE provincia di Sassari privato vende in centro abitato ma in zona tranquilla ...
-
Villa a Olbia
200 € Case - Appartamenti in Vendita Olbia 2022/06/12In contesto collinare a circa 10 km dalla Rinomata Costa Smeralda tra Porto Cervo e Porto Rotondo - ...


