Meianiga: Vendita Trilocale da 85mq con garage
-
- Cadoneghe, Padova
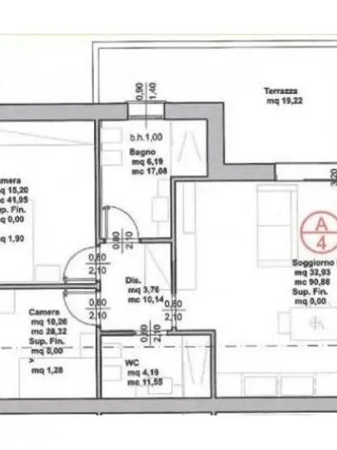
rif: A217 - MEJANIGA CENTRO in NUOVO CANTIERE APPARTAMENTI in classe A1 con Ampia zona Living con cucina aperta e affaccio su terrazza/pranzo estivo di mq. 19 con ampia vetrata a scorrere, due camere con accesso al poggiolo, 2 ampi bagni, garage e posto auto di proprietà. Riscaldamento e rinfrescamento centralizzata a gestione autonoma a €. 185.000,00. Installazione di Pannelli fotovoltaici per l'alimentazione di un impianto di riscaldamento e rinfrescamento centralizzato in Pompa di Calore con contabilizzazione Wireless, Ventilazione Meccanica Forzata, Scalda salviette nei Bagni, Sanitari Sospesi Domotica, impianto satellitare centralizzato, Tapparelle motorizzate, videocitofono a colori comprensivo, scale interne condominiali in marmo con parapetti in acciaio, ascensore con pavimento in marmo. Codice di riferimento Agenzia: A217 (1431938)
Contatta
Annunci correlati
-
Codiverno: Vendita Villa da 190mq
235.000 € Case - Appartamenti in Vendita Vigonza (Padova) 2022/06/22rif: BG400 - CODIVERNO Ottima Porzione di Bifamiliare "Al Grezzo" con Ampio Portico d'ingresso a Sud...
-
Busa: Vendita Quadrilocali da 100mq con due garage
149.000 € Case - Appartamenti in Vendita Vigonza (Padova) 2022/06/22rif: AM313 - BUSA DI VIGONZA in q.re tranquillo e comodo ai servizi OTTIMO APPARTAMENTO DUPLEX compo...
-
Arzercavalli: Vendita Trilocale da 2147483647mq con garage
72.000 € Case - Appartamenti in Vendita Terrassa Padovana (Padova) 2022/06/22TERRASSA PADOVANA, quasi nuovo, mini composto da: soggiorno con angolo cottura arredato, camera matr...


