Vendita Appartamento a Caldonazzo
-
- Trento
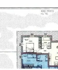
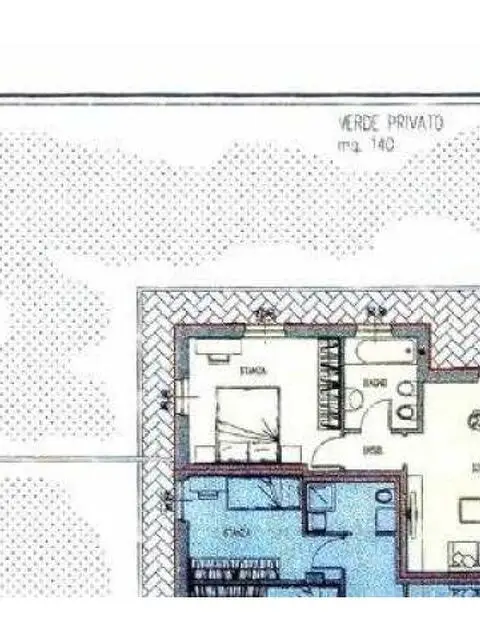
Mini con giardino di mq.140 Caldonazzo Allinterno di un nuovo complesso residenziale in posizione centrale nel borgo di Caldonazzo (circa 150 mt. dalla Stazione F.S. e circa 150 mt. dal Comune).composto da tre edifici separati, con un ampio spazio aperto adibito a verde condominiale e privato, aree giochi a circolazione pedonale, oltre ad un parcheggio esterno con ingresso separato, disponiamo di splendido appartamento mini posto a piano terra. Laccesso allappartamento e garantito da un luminoso e comodo giroscale con scalinata rivestita in marmo oltre che da ascensore rispondente alle norme in materia di barriere architettoniche. La disposizione dellimmobile e: entrata, soggiorno con cucina a vista,portafinestra che porta su giardino esterno esclusivo (140 mq), studio, disbrigo zona notte, bagno, una stanza matrimoniale, bagno finestrato. I serramenti esterni sono in legno lamellare, mentre per quelli interni ce la possibilita di scelta , per i pavimenti caldi e previsto parquettes in legno (da scegliere) mentre per la cucina, bagni, entrata e previsto posa di ceramica di prima scelta. Limpianto di riscaldamento e centralizzato con unica caldaia presurizzata a condensazione con distribuzione del calore con la tecnica a pavimento, con regolazione temperatura interna con due cronotermostati. Allesterno delle murature si e creato un isolamento termico del tipo a cappotto con posa
Contatta
Annunci correlati
-
Affittasi ristorante
36 € Case - Appartamenti in Vendita Trento 2022/06/12Affitto ristorante, pub, con licenza discoteca a madonna di Campiglio
-
Appartamento in Vendita di 86mq
195 € Case - Appartamenti in Vendita Trento 2022/06/12Bicamere Caldonazzo Allinterno di un nuovo complesso residenziale in posizione centrale nel borgo di...
-
Appartamento di 4 locali in Vendita
270 € Case - Appartamenti in Vendita Trento 2022/06/12Tricamere Caldonazzo Allinterno di un nuovo complesso residenziale in posizione centrale nel borgo d...


