Vendita mansarda mq. 81 - Vestone
120.000 €
-
- Vestone, Brescia
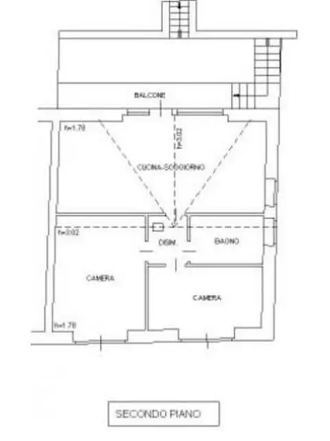
In centro a Vestone proponiamo incantevole mansarda di nuova ristrutturazione composta da cucina e soggiorno open space, 2 camere, bagno e lavanderia, tutto finemente arredato. Si può stare all'aria aperta sia sul balcone che nel giardino esclusivo. EURO 120.000,00 CLASSE ENERGETICA: D (DL 192 19/08/05) IPE: 104.25 kwh/mq - Gestionale OfficeCasa.it -
Contatta
Nome: Agenzia
120.000 €
Invia messaggioSolo per utenti registrati Inserito il 2022/06/18
Aggiungi un commento pubblico...
Annunci correlati
-
Vendita casa indipendente mq. 150 - Zona Vico
29.000 € Case - Appartamenti in Vendita Treviso Bresciano (Brescia) 2022/06/18TREVISO BRESCIANO Casa in centro storico da ristrutturare posta su 3 livelli di mq 150. EURO 29.000,...
-
Vendita Bilocale in Viale Conti Emili
100.000 € Case - Appartamenti in Vendita Mazzano (Brescia) 2022/06/18Elegante contesto, posizione ottimale tranquilla e allo stesso tempo comodo ad ogni servizio, in cos...
-
Vendita Bilocale in Via Prada
150.000 € Case - Appartamenti in Vendita Brescia (Brescia) 2022/06/18Bilocale piano primo con ingresso indipendente. Soggiorno con cucina a vista, terrazza/loggiato rise...


