Piazzolla Di Nola: Vendita Edificabile residenziale da 1200mq
130.000 €
-
- Nola, Italy
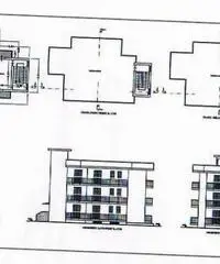
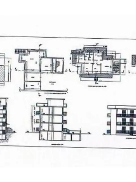
Nola, località Piazzolla , disponiamo di un lotto edificabile di mq 1200, con progetto approvato per la realizzazione di n° 4 appartamenti. Zona tranquilla . Codice di Riferimento Agenzia: Terreno edificabile residenziale Nola località Piazzolla
Contatta
Nome: Agenzia
130.000 €
Invia messaggioSolo per utenti registrati Inserito il 2022/06/17
Aggiungi un commento pubblico...
Annunci correlati
-
Vendita Agricolo in Strada Provinciale San Vito - Scisciano
35.000 € Terreni e rustici Marigliano 2022/06/17MARIGLIANO: in Via Provinciale Marigliano Scisciano al n°22, nei pressi della vesuviana vendiamo un ...
-
Vendita Agricolo in Via Boscofangone
40.000 € Terreni e rustici Nola 2022/06/17Progetto casa propone in vendita nel comune di Nola (NA) località Boscofangone , disponiamo di un te...
-
Vendita Agricolo in periferia
35.000 € Terreni e rustici Somma Vesuviana 2022/06/17Progetto Casa propone in vendita , terreno agricolo, interamente recintato , in zona periferica del ...


