Affitto Capannone in A1 Diramazione Roma Nord
18.000 €
-
- Fiano Romano, Roma
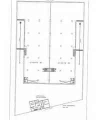
capannone industriale di recente costruzione, collocato in posizione strategica a ridosso del casello autostradale di roma nord con elevata visibilita dal collegamento auto stradale fiano romano - g.r.a; disponibile in locazione una porzione di 2.500 mq. i cui 600 mq. uffici in palazzina bilivello (300+300) oltre ad aree esterne di pertinenza per info e contatti 336/365495 oppure gestione@eurocostruzioniroma.it
Contatta
Nome: Agenzia
18.000 €
Invia messaggioSolo per utenti registrati Inserito il 2022/07/04
Aggiungi un commento pubblico...
Annunci correlati
-
Affitto Capannone in A1 Diramazione Roma Sud
2.950 € Uffici e Locali commerciali San Cesareo (Roma) 2022/07/04Roma San Cesareo, a due passi dall'autostrada (meno di un kilometro) ed in posizione logistica PERFE...
-
Affitto Capannone da 625mq
6.500 € Uffici e Locali commerciali Ciampino (Roma) 2022/07/04Locale D/7 in affitto , piano seminterrato con rampa privata, mq. 1250 piu' mq.- 100 di uffici, libe...
-
Affitto Capannone da 550mq
2.200 € Uffici e Locali commerciali Castelnuovo di Porto (Roma) 2022/07/04Capannone industriale MQ 550 CASTELNUOVO DI PORTO (RM), ZONA SALARIA uso magazzino e artigianale, pi...


