Affitto Capannone in Via Venere
-
- Anzio, Roma
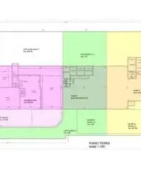
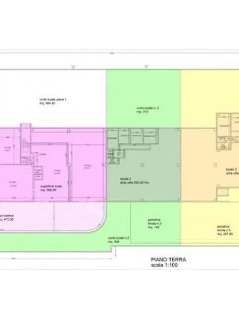
ANZIO-PADIGLIONE - VIA VENERE A RIDOSSO DI VIA NETTUNENSE (FIAT) PER INFORMAZIONI E VISITE 334-8512644 Locale posto al piano terra di circa 370 mq con piazzale esterno pari a 835 mq e pensilina di 270 mq . Locale commerciale in edificio commerciale, ubicato ad Anzio (Rm), a ridosso della località Padiglione. L’immobile è prospiciente alla Via Nettunense S.S.207, quindi gode di ottima visibilità, e sorge su un lotto di terreno di circa 5.320 mq. E’ costituito di un corpo di fabbrica di forma rettangolare con un’ulteriore appendice. L’edificio si sviluppa su due livelli, e precisamente: Ulteriori dettagli: Le rifiniture esterne sono in graniglia e le finestrature sono di tipo a nastro. Gli accessi sono garantiti da portoni industriali di adeguate larghezze. Posizione: L’immobile dista circa 100 metri dalla stazione ferroviaria di Padiglione, importante snodo della linea Roma Termini-Nettuno, dove transitano circa 4.000 pendolari al giorno. Sorge a ridosso della frazione del Comune di Nettuno denominata Padiglione, che è considerata a tutti gli effetti il polo industriale della città, ove sorgono aziende di primaria importanza a livello nazionale. Inoltre dista meno di 10 km dal polo industriale della città di Aprilia e dalla Via Pontina S.S.148 che lo collega agevolmente con Pomezia e Latina. La città di Anzio, insieme alla contigua Nettuno, formano un bacino commerciale di oltre 120.000 residenti e nei 4 mesi della stagione estiva la popolazione presente supera i 250.000 abitanti. Per vedere tutte le nostre offerte immobiliari visita il sito WWW.COLLALTIMMOBILIARE.IT Codice di Riferimento Agenzia: GC-1
Contatta
Annunci correlati
-
Affitto Capannone in Via Nazionale Tiburtina
6.800 € Uffici e Locali commerciali Guidonia Montecelio (Roma) 2022/07/02Capannone industriale di mq 1700, cat. D/7, sito nel Comune di Guidonia Montecelio (RM). L'immobile ...
-
Affitto Capannone in Via Milano
2.999 € Uffici e Locali commerciali Fiano Romano (Roma) 2022/07/02Fiano Romano - zona industriale a meno di due chilometri dal casello autostradale - piu' importante ...
-
Affitto Capannone in Via di Vallericcia
3.500 € Uffici e Locali commerciali Ariccia (Roma) 2022/07/02ARICCIA - Via Vallericcia - Porzione di capannone industriale/artigianale, open space con zona uffic...


