Badia A Settimo: Vendita Capannone in Via San Colombano
2.650.000 €
-
- Scandicci, Firenze
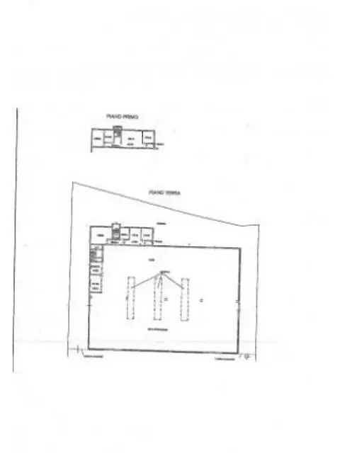
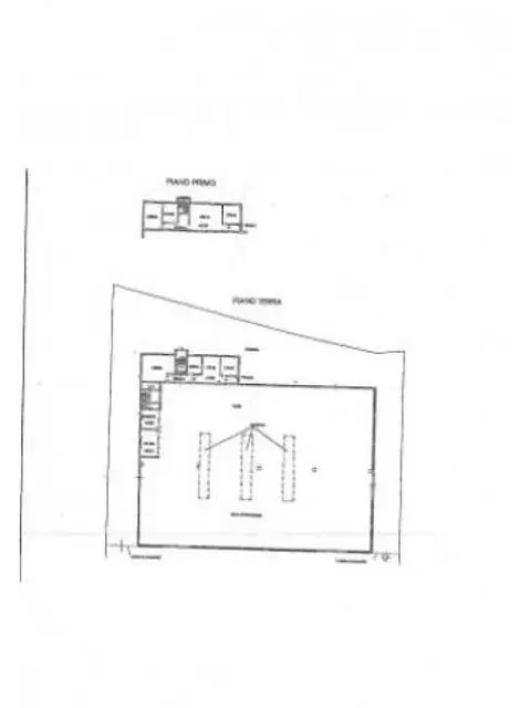
SCANDICCI zona industriale vendesi capannone libero su quattro lati per una superficie totale di circa mq. 2.050 suddivisi in mq. 1800 uso produttivo con altezza interna mt. 6 e mq. 250 uso uffici,piazzale privato mq. 1.000 Codice di Riferimento Agenzia: CA242
Contatta
Nome: Agenzia
2.650.000 €
Invia messaggioSolo per utenti registrati Inserito il 2022/07/04
Aggiungi un commento pubblico...
Annunci correlati
-
Badia A Settimo: Affitto Capannone in Via del Botteghino
11.000 € Uffici e Locali commerciali Scandicci (Firenze) 2022/07/04Scandicci Badia a Settimo stabilimento industriale mq 1500 con parcheggio esclusivo per 40 vetture ....
-
Affitto Laboratorio in Via San Paolo
3.500 € Uffici e Locali commerciali Scandicci (Firenze) 2022/07/04Scandicci zona industriale uscita autostrada e fi pi li affittasi fondo laboratorio di circa mq.400 ...
-
Affitto Capannone in viale VIA DEL LAVORO
2.700 € Uffici e Locali commerciali Calenzano (Firenze) 2022/07/04Rif: 726 - CALENZANO-PROPONIAMO CAPANNONE ARTIGIANALE IN OTTIME CONDIZIONI, CON DOPPIO INGRESSO CARR...


