Capannone a Albignasego - Rif. V812

360.000 €
    • Albignasego, Padova

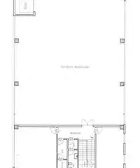
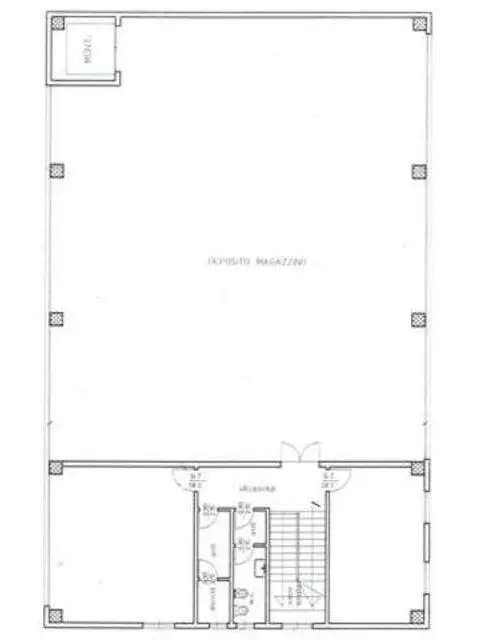
Ad Albignasego (PD), vendesi capannone indipendente. Codice di riferimento interno agenzia V812. Si tratta di un capanno in zona artigianale, nelle immediate vicinanze della Strada Battaglia. Il capannone si sviluppa su due piani di 360 mq ciascuno, con altezza di 4 metri e predisposizione per montacarichi. Entrambi i piani sono dotati di uffici e di impianto di riscaldamento. Esternamente c'è uno scoperto di circa 550 metri quadrati. Classe energetica G. IPE 134. Il prezzo di vendita richiesto è 360.000,00 Euro. Subito disponibile.

Contatta


Nome: Agenzia
360.000 €
Invia messaggioSolo per utenti registrati Inserito il 2022/07/04
Aggiungi un commento pubblico...

Annunci correlati

  • Affitto Magazzino/deposito 50 mq

    Affitto Magazzino/deposito 50 mq

    250 € Uffici e Locali commerciali Maserà di Padova (Padova) 2022/07/04

    Affitto magazzino/deposito di 50 mq a Maserà di Padova con servizi indipendenti e a norma , doppia ...

  • Affitto Capannone in ROVERE

    Affitto Capannone in ROVERE

    4.900 € Uffici e Locali commerciali Maserà di Padova (Padova) 2022/07/04

    Locale commerciale ex supermercato, fronte strada in zona centrale e comoda alle vie di trasporto, c...

  • Affitto Capannone da 250mq

    Affitto Capannone da 250mq

    1.000 € Uffici e Locali commerciali Vigonza (Padova) 2022/07/04

    Rif: LC240 -(235584) - Peraga di Vigonza, Capannone Mq 250, Deposito/artigianale H 6.50 sottotrave, ...