CAPANNONE di 2 vani e di 770 mq (AGLIANA) rif. F465
-
- Agliana, Pistoia
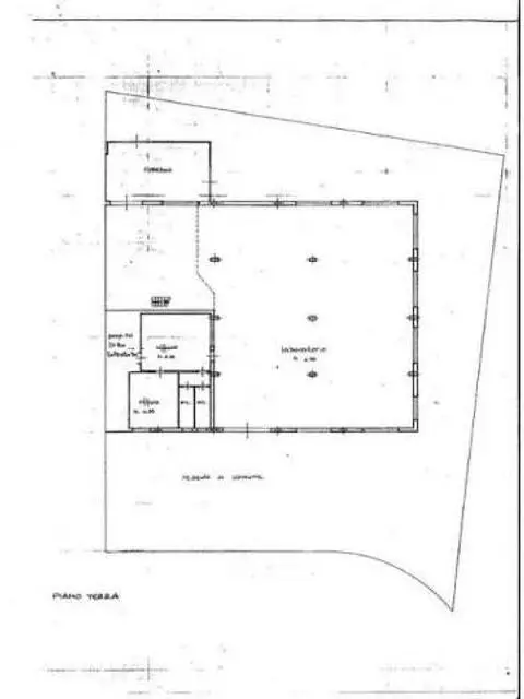
Agliana ( zona artigianale Il Calice ) capannone ed appartamento di complessivi mq. 770. Il capannone ad uso attività produttiva, posto al piano terreno, è costituito da un unico vano di complessivi mq. 640, all'interno del quale si rileva il gruppo uffici e servizi, disposti su due piani, piano terra e piano ammezzato, oltre due servizi. L'appartamento è situato al piano primo ed è costiutito da ampia zona soggiorno/pranzo, cucina, due ampissime camere matrimoniali, doppi servizi e terrazzi abitabili. La superficie dell'appartamento è di circa 130 mq. C'è poi un resede privato carrabile circostante di circa 600 mq. Il tutto è in ottimo stato. La richiesta è di euro 680.000. Classe energetica G - IPE : 35,66 kw/mc. Rif. F465
Contatta
Annunci correlati
-
Monopattino elettrico a quattro ruote con certificazione CE
450 € Uffici e Locali commerciali Napoli, ITA (Napoli, ITA) 2025/06/17Motopattino elettrico a quattro ruote con certificazione CE. Capacità di salita: 13 gradi. Capacità ...
-
Attività Commerciale, Gelateria. Fano
110.000 € Uffici e Locali commerciali Fano (Pesaro e Urbino) 2025/02/17Attività commerciale di gelateria composto da ingresso su balcone, laboratorio, scoperto esterno e b...
-
Ufficio 3 ambienti in Via degli Orti Villabianca
67.000 € Uffici e Locali commerciali Palermo (Palermo) 2025/02/16Proponiamo in vendita un ufficio situato nella prestigiosa zona residenziale di Don Bosco - Villabia...


