Capannone in Vendita a Scanzano Jonico
-
- Scanzano Jonico, Matera
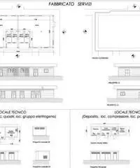
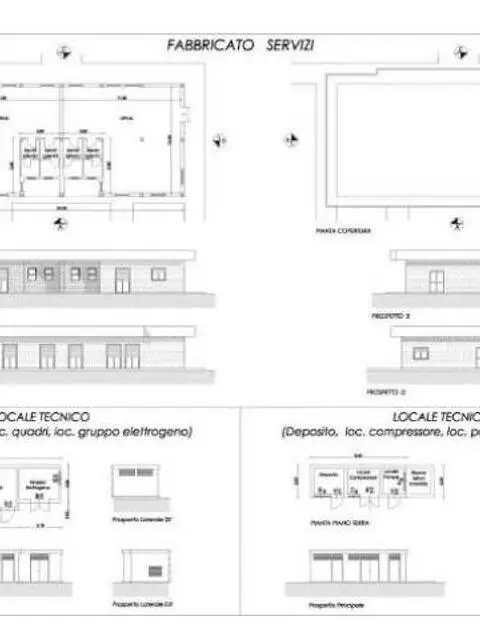
Capannone, palazzina servizi, due fabbricati destinati a locali tecnici e area di pertinenza esterna recintata. Per visionare Perizia e altri Documenti visitare il sito http://www.asteannunci.it o il sito del Tribunale Riferimenti Asta Giudiziaria: Tribunale di Matera - RGE : 2009/2 RECAPITI Giudice: Vitale Antonello Curatore: Chita Francesco Paolo Tel./fax 0835593457 Firmatario: Chita Avv. Francesco Paolo Cronologico Ordinanza: quarto esperimento Luogo Vendita: Studio in Montalbano Jonico alla Via Cairoli n. 1 Modalità Deposito: Proposte c/o lo studio del Curatore in Montalbano Jonico alla Via Cairoli n. 1 con cauzione del 10% del prezzo offerto a mezzo a.c. N.T., Termine 11/01/2017 Udienza senza incanto - Data: 12/01/2017 17.00 Cauzione: € 10,00 Offerte Aumento: € 15.000,00
Contatta
Annunci correlati
-
Monopattino elettrico a quattro ruote con certificazione CE
450 € Uffici e Locali commerciali Napoli, ITA (Napoli, ITA) 2025/06/17Motopattino elettrico a quattro ruote con certificazione CE. Capacità di salita: 13 gradi. Capacità ...
-
Attività Commerciale, Gelateria. Fano
110.000 € Uffici e Locali commerciali Fano (Pesaro e Urbino) 2025/02/17Attività commerciale di gelateria composto da ingresso su balcone, laboratorio, scoperto esterno e b...
-
Ufficio 3 ambienti in Via degli Orti Villabianca
67.000 € Uffici e Locali commerciali Palermo (Palermo) 2025/02/16Proponiamo in vendita un ufficio situato nella prestigiosa zona residenziale di Don Bosco - Villabia...


