Santa Lucia: Vendita Capannone in via monte bianco 22
-
- Fonte Nuova, Roma
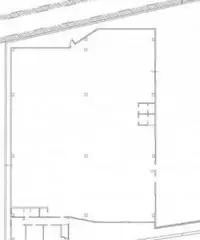
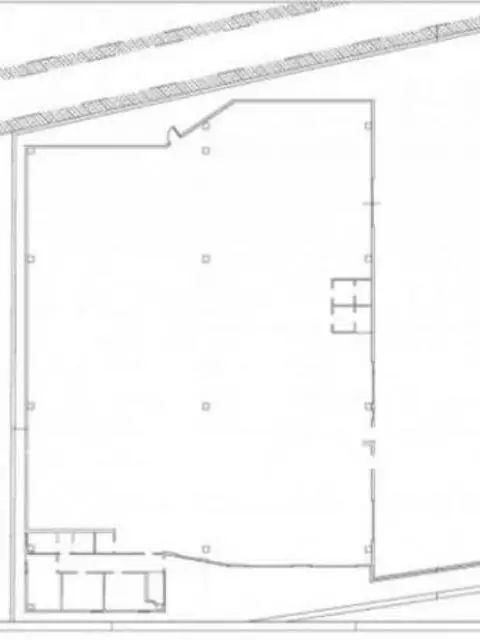
Santa Lucia di Mentana (RM) zona industriale nelle vicinanze della Nomentana lotto di Mq 2.400 c.a. sul quale insiste un fabbricato con destinazione D7 di Mq 1.120 c.a. alto m 4,50 con uffici Mq 50 c.a. (compresi nella metrature) e servizi, piazzale di esclusiva pertinenza Mq 900 c.a. C.E. G Disponiamo di altre metrature e tipologie in affitto e/o vendita. AFFITTARE o VENDERE un immobile è facile se ti affidi ai professionisti del settore!!!!! Chiamaci ai numeri 0774 37 70 19 - cell 334 131 77 00! La nostra società opera da anni nel settore immobiliare rivolgendosi al mondo dell'imprenditoria e degli operatori specialistici del real estate. Grazie all'esperienza consolidata dedicandosi a questo particolare segmento del mercato, rispondiamo ad ogni esigenza legata all'acquisto, alla vendita, alla locazione e alla valorizzazione di immobili ad uso terziario, industriale e commerciale. Gestiamo infatti in modo professionale ed efficiente la complessità delle tematiche legate alle esigenze immobiliari delle aziende, proponendo un'ampia gamma di soluzioni alle necessità dei clienti. La nostra divisione intermediazione immobiliare offre tutti i servizi necessari al proprietario, per la commercializzazione del proprio immobile, ed all'utilizzatore, per la ricerca dell’immobile adatto alle sue esigenze. Svolgiamo attività di consulenza rivolta alla compravendita, locazione e valutazione di immobili industriali, commerciali, uffici e residenziali. In particolare: • Uffici: attività rivolte a imprese del settore terziario per la ricerca, l'acquisto, la vendita e la locazione di immobili ad uso ufficio. • Industria: attività rivolte a imprese del settore industriale, logistico e produttivo per la ricerca, l'acquisto, la vendita e la locazione di aree e immobili strumentali. • Retail: servizi e attività a imprese del settore commerciale per la ricerca, l'acquisto, la vendita e la locazione di immobili destinati ad attività commerciali quali negozi, catene di punti vendita, centri commerciali, che implicano un contatto diretto con il pubblico. I nostri principali servizi: Servizi dedicati al proprietario • valutazione dell'immobile • reperimento documentazione presso gli Enti preposti • ricerca di acquirenti e/o conduttori • sviluppo dei contatti • assistenza fino alla sottoscrizione dei contratti Servizi dedicati all'utilizzatore • analisi delle esigenze e di mercato • individuazione dell'immobile • assistenza fino alla sottoscrizione dei contratti Codice di Riferimento Agenzia: (1568027)
Contatta
Annunci correlati
-
Santa Lucia: Vendita Capannone in Strada Provinciale 29b
530.000 € Uffici e Locali commerciali Fonte Nuova (Roma) 2022/07/02Capannone MQ 600 FONTE NUOVA ZONA INDUSTRIALE, uso magazzino/artigianale, struttura prefabbricata in...
-
Roma- Zona Borghesiana- Capannone industriale
990.000 € Uffici e Locali commerciali Roma (Roma) 2022/07/02Roma- zona Borghesiana- Trattiamo la vendita di un capannone industriale di 1800 mq con corte esclus...
-
Santa Lucia: Affitto Capannone in via Monte Bianco
3.920 € Uffici e Locali commerciali Fonte Nuova (Roma) 2022/07/02Santa Lucia di Mentana (RM) zona industriale nelle vicinanze della Nomentana lotto di Mq 2.400 c.a. ...


