Tito Scalo: Vendita Capannone in Contrada Macchia, 0
-
- Tito, Potenza
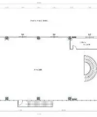
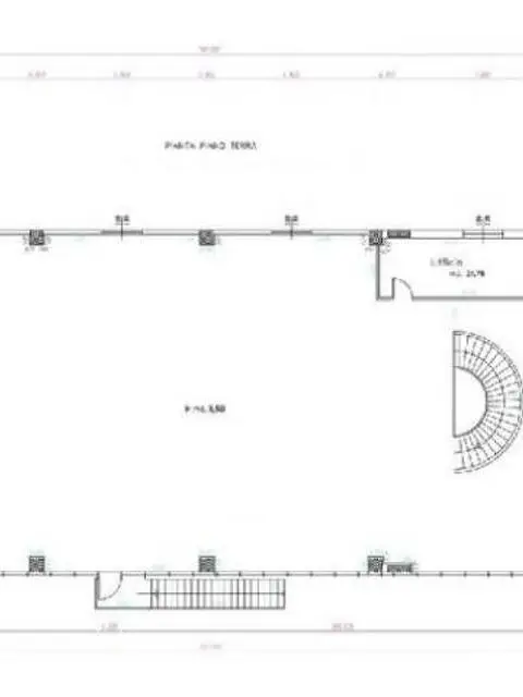
Tito, a soli 1,5 Km dallo svincolo del Raccordo Autostradale A5 Potenza - Sicignano innesto A3 e con ottima visibilità da entrambre le carreggiate del tratto Potenza - Tito, struttura a destinazione commerciale disposta su 2 livelli, collegati internamente da una scala, per complessivi mq. 1.000 circa con area di mq. 1.200 circa destinata a parcheggio ed area di mq. 2.000 circa di piazzale fronte autostrada. Ottime rifiniture interne ed impianto di riscaldamento con pannelli radianti a pavimento. Possibilità di vendita frazionata in 2 unità con ingressi autonomi. Anche in locazione. Codice di Riferimento Agenzia: 111-05VCG
Contatta
Annunci correlati
-
laboratorio per panificio
300.000 € Uffici e Locali commerciali Potenza (Potenza) 2022/07/04laboratorio per panificio di 150 mq a norma con attrezzature vero affare ce anche un forno a legna c...
-
Disponibili locali x uso magazzino o attivita commerciale
800 € Uffici e Locali commerciali Melfi (Potenza) 2022/07/04Disponibili 2 locali situati in zona Melfi nord. I locali possono essere adibiti a magazzino o x att...
-
Centro città: Vendita Capannone in Contrada Caira
115.000 € Uffici e Locali commerciali Potenza (Potenza) 2022/07/04A Potenza in Via Caira VENDESI capannone ad uso artigianale di mq 391 comprensivo di n°2 uffici, dop...


