Vendita Capannone da 560mq
550.000 €
-
- Vigonza, Padova
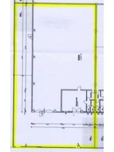
Rif: C560 -(228593) - Peraga di Vigonza, Nuovo Capannone di Mq 600ca, altezza 7,70, Plinti per Carroponte, Nuova zona Artigianale/Industriale, Laboratorio magazzino di Mq 500 ca, più Uffici e servizi, Porzione al grezzo interno Finiture a richiesta, Codice di Riferimento Agenzia: C560 -(228593) (876286)
Contatta
Nome: Agenzia
550.000 €
Invia messaggioSolo per utenti registrati Inserito il 2022/07/04
Aggiungi un commento pubblico...
Annunci correlati
-
Vendita Capannone da 1mq
470.000 € Uffici e Locali commerciali Vigonza (Padova) 2022/07/04VIGONZA - capannone in zona industriale Vigonza, di 736 mq con zona uffici di 160 mq e tre servizi. ...
-
Peraga: Affitto Capannone da 800mq
2.500 € Uffici e Locali commerciali Vigonza (Padova) 2022/07/04Rif: LC720 - Perarolo di Vigonza, CAPANNONE mq 700+100, Ampio piazzale Recintato di Mq 1.000, Libero...
-
Peraga: Affitto Capannone da 800mq
2.500 € Uffici e Locali commerciali Vigonza (Padova) 2022/07/04Rif: LC720 - Perarolo di Vigonza, CAPANNONE mq 700+100, Ampio piazzale Recintato di Mq 1.000, Libero...


