Ortona Vendita Villa
-
- Ortona
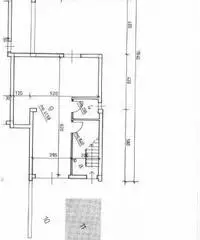
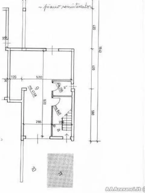
Vendesi ad Ortona, zona Lido Riccio, villetta a schiera di nuova costruzione di circa 180 mq., disposta su tre livelli composta da: Piano Terra con ingresso, taverna, bagno, garage, giardino e parcheggio di pertinenza; Piano Primo con soggiorno, cucina, bagno e ampio balcone; Piano Secondo con camera matrimoniale, camera, studio, disimpegno e bagno. Pronta Consegna Classe Energetica "G" Epi<160kwh/mqa.. in fase di accertamento Vendesi ad Ortona, zona Lido Riccio, villetta a schiera di nuova costruzione di circa 180 mq., disposta su tre livelli composta da: Piano Terra con ingresso, taverna, bagno, garage, giardino e parcheggio di pertinenza; Piano Primo con soggiorno, cucina, bagno e ampio balcone; Piano Secondo con camera matrimoniale, camera, studio, disimpegno e bagno. Pronta Consegna Classe Energetica "G" Epi<160kwh/mqa.. in fase di accertamento Classe Energetica: G EPI: 160 kwh/m2 anno - SC1527994
Contatta
Annunci correlati
-
Villa in zona SAN VITO CAPOLUOGO a San Vito Chietino
195 € Case - Appartamenti in Vendita Chieti 2022/06/12Vendesi a San Vito Chietino paese, villetta trifamiliare di testa, ottimamente rifinita, di circa 20...
-
Appartamento in Vendita di 97mq
297 € Case - Appartamenti in Vendita Pescara 2022/06/12Vendesi in pieno centro a Pescara, a 200 mt. da Corso Umberto e a 500 mt. dal mare, appartmenti di v...
-
Appartamento in Vendita di 88mq
190 € Case - Appartamenti in Vendita Francavilla al Mare 2022/06/12Vendesi a Francavilla al Mare, nelle vicinanze del lungomare Nord, appartamenti in complesso residen...


